'S-GRAVENHAGE - Regentessekwartier
€ 400.000
De Gheijnstraat 138
3 Kamers
1 Badkamers
2 Slaapkamers
74 m²
A++
Onbekend
Bezichtiging plannen
Beschrijving
Onder architectuur gebouwde grondgebonden woning naar een stijlvol Haags ontwerp. In 2025 is deze voormalige bedrijfsruimte getransformeerd naar een hoogwaardige duurzame woning (A++) van ca. 74 m² woonoppervlak voorzien van titaanzinken gevelbekleding, nieuwe installaties compleet met vloerverwarming, luxe open keuken, strak stucwerk, zonnig terras en schitterend sanitair. Het resultaat is een uniek object waarbij eigentijdse architectuur en modern wooncomfort samenkomen.
De locatie in het populaire Regentessekwartier is uitstekend te noemen en op loopafstand van het gezellige Regentesseplein, de winkels van de Weimarstraat en sportpark De Verademing. Daarnaast is het pand zeer strategisch gelegen ten opzicht van het Centrum, het strand van Scheveningen, scholen en openbaar vervoer.
Indeling:
Entree van de woning via nieuwe pui met groot glasoppervlak, charmante woonkamer met aan beide zijde lichtinval, gietvloer met vloerverwarming en luxe open keuken voorzien van walnootlook kasten, hardstenen werkblad, Quooker, hoog model Siemens bakoven, vaatwasser, koel-/vriescombinatie en inductiekookplaat met geïntegreerde afzuiging. Verder op de begane grond een hal met aparte technische ruimte en toilet voorzien van fraai tegelwerk, wandcloset en fonteintje.
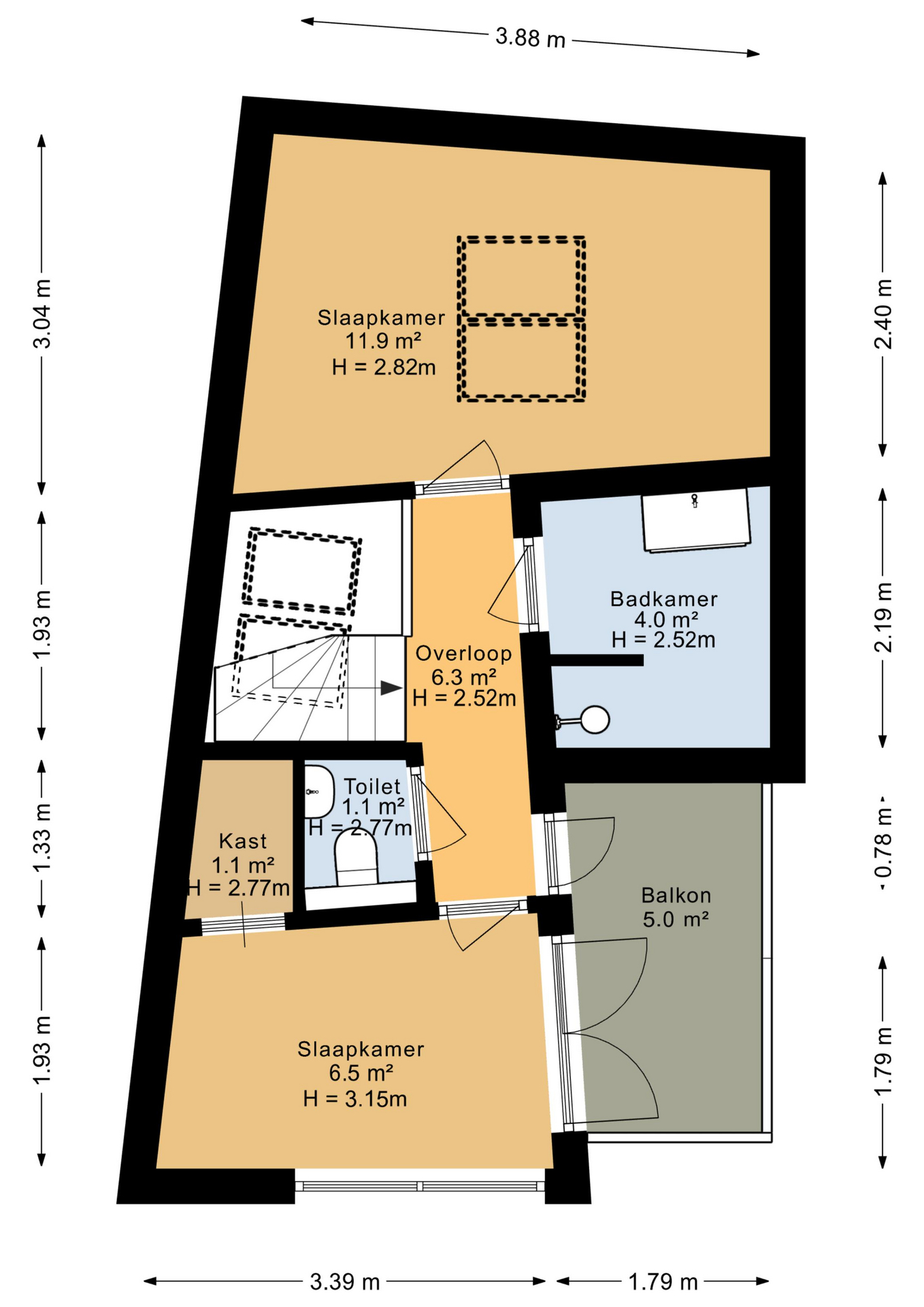
Vanuit de woonkamer de trap naar de eerste etage, overloop met schitterende lichtinval dankzij groot daklicht, apart toilet en toegang tot leuk terras pal zuidwest dat hoogwaardig is afgewerkt. Aan de achterzijde de hoofdslaapkamer over de volle breedte van de woning met goede nokhoogte en twee grote daklichten. Aan de voorzijde nog een goed formaat slaapkamer voorzien van vaste kast en openslaande deuren naar terras. De tussengelegen badkamer beschikt over fraai lichtgrijs tegelwerk, ingebouwd leidingwerk, handdoekradiator, inloopdouche met glazen deur, spiegel met verlichting en walnootlook badkamermeubel.
Aanvullende informatie:
- ’s-Gravenhage sectie AM nummer 1067
- Bouwjaar 1906
- Eigen grond
- Energielabel A++
- Perceelgrootte ca. 50 m²
- Gemeentelijk beschermd stadsgezicht
- Grondgebonden woning dus geen VvE
- Gasloos wonen op een perfecte locatie
- Voorzien van warmtepomp Alpha innotec Jersey 5Kw warmtepomp (lucht/water)
- 1 jaar garantie op de uitgevoerde werkzaamheden
- Algemene verkoopvoorwaarden van toepassing
- Ouderdoms- en niet-bewoningsclausule van toepassing
- Projectnotaris Maaldrink
- Oplevering kan indien gewenst snel
De locatie in het populaire Regentessekwartier is uitstekend te noemen en op loopafstand van het gezellige Regentesseplein, de winkels van de Weimarstraat en sportpark De Verademing. Daarnaast is het pand zeer strategisch gelegen ten opzicht van het Centrum, het strand van Scheveningen, scholen en openbaar vervoer.
Indeling:
Entree van de woning via nieuwe pui met groot glasoppervlak, charmante woonkamer met aan beide zijde lichtinval, gietvloer met vloerverwarming en luxe open keuken voorzien van walnootlook kasten, hardstenen werkblad, Quooker, hoog model Siemens bakoven, vaatwasser, koel-/vriescombinatie en inductiekookplaat met geïntegreerde afzuiging. Verder op de begane grond een hal met aparte technische ruimte en toilet voorzien van fraai tegelwerk, wandcloset en fonteintje.
Vanuit de woonkamer de trap naar de eerste etage, overloop met schitterende lichtinval dankzij groot daklicht, apart toilet en toegang tot leuk terras pal zuidwest dat hoogwaardig is afgewerkt. Aan de achterzijde de hoofdslaapkamer over de volle breedte van de woning met goede nokhoogte en twee grote daklichten. Aan de voorzijde nog een goed formaat slaapkamer voorzien van vaste kast en openslaande deuren naar terras. De tussengelegen badkamer beschikt over fraai lichtgrijs tegelwerk, ingebouwd leidingwerk, handdoekradiator, inloopdouche met glazen deur, spiegel met verlichting en walnootlook badkamermeubel.
Aanvullende informatie:
- ’s-Gravenhage sectie AM nummer 1067
- Bouwjaar 1906
- Eigen grond
- Energielabel A++
- Perceelgrootte ca. 50 m²
- Gemeentelijk beschermd stadsgezicht
- Grondgebonden woning dus geen VvE
- Gasloos wonen op een perfecte locatie
- Voorzien van warmtepomp Alpha innotec Jersey 5Kw warmtepomp (lucht/water)
- 1 jaar garantie op de uitgevoerde werkzaamheden
- Algemene verkoopvoorwaarden van toepassing
- Ouderdoms- en niet-bewoningsclausule van toepassing
- Projectnotaris Maaldrink
- Oplevering kan indien gewenst snel
Beschrijving
Onder architectuur gebouwde grondgebonden woning naar een stijlvol Haags ontwerp. In 2025 is deze voormalige bedrijfsruimte getransformeerd naar een hoogwaardige duurzame woning (A++) van ca. 74 m² woonoppervlak voorzien van titaanzinken gevelbekleding, nieuwe installaties compleet met vloerverwarming, luxe open keuken, strak stucwerk, zonnig terras en schitterend sanitair. Het resultaat is een uniek object waarbij eigentijdse architectuur en modern wooncomfort samenkomen.
De locatie in het populaire Regentessekwartier is uitstekend te noemen en op loopafstand van het gezellige Regentesseplein, de winkels van de Weimarstraat en sportpark De Verademing. Daarnaast is het pand zeer strategisch gelegen ten opzicht van het Centrum, het strand van Scheveningen, scholen en openbaar vervoer.
Indeling:
Entree van de woning via nieuwe pui met groot glasoppervlak, charmante woonkamer met aan beide zijde lichtinval, gietvloer met vloerverwarming en luxe open keuken voorzien van walnootlook kasten, hardstenen werkblad, Quooker, hoog model Siemens bakoven, vaatwasser, koel-/vriescombinatie en inductiekookplaat met geïntegreerde afzuiging. Verder op de begane grond een hal met aparte technische ruimte en toilet voorzien van fraai tegelwerk, wandcloset en fonteintje.
Vanuit de woonkamer de trap naar de eerste etage, overloop met schitterende lichtinval dankzij groot daklicht, apart toilet en toegang tot leuk terras pal zuidwest dat hoogwaardig is afgewerkt. Aan de achterzijde de hoofdslaapkamer over de volle breedte van de woning met goede nokhoogte en twee grote daklichten. Aan de voorzijde nog een goed formaat slaapkamer voorzien van vaste kast en openslaande deuren naar terras. De tussengelegen badkamer beschikt over fraai lichtgrijs tegelwerk, ingebouwd leidingwerk, handdoekradiator, inloopdouche met glazen deur, spiegel met verlichting en walnootlook badkamermeubel.
Aanvullende informatie:
- ’s-Gravenhage sectie AM nummer 1067
- Bouwjaar 1906
- Eigen grond
- Energielabel A++
- Perceelgrootte ca. 50 m²
- Gemeentelijk beschermd stadsgezicht
- Grondgebonden woning dus geen VvE
- Gasloos wonen op een perfecte locatie
- Voorzien van warmtepomp Alpha innotec Jersey 5Kw warmtepomp (lucht/water)
- 1 jaar garantie op de uitgevoerde werkzaamheden
- Algemene verkoopvoorwaarden van toepassing
- Ouderdoms- en niet-bewoningsclausule van toepassing
- Projectnotaris Maaldrink
- Oplevering kan indien gewenst snel
De locatie in het populaire Regentessekwartier is uitstekend te noemen en op loopafstand van het gezellige Regentesseplein, de winkels van de Weimarstraat en sportpark De Verademing. Daarnaast is het pand zeer strategisch gelegen ten opzicht van het Centrum, het strand van Scheveningen, scholen en openbaar vervoer.
Indeling:
Entree van de woning via nieuwe pui met groot glasoppervlak, charmante woonkamer met aan beide zijde lichtinval, gietvloer met vloerverwarming en luxe open keuken voorzien van walnootlook kasten, hardstenen werkblad, Quooker, hoog model Siemens bakoven, vaatwasser, koel-/vriescombinatie en inductiekookplaat met geïntegreerde afzuiging. Verder op de begane grond een hal met aparte technische ruimte en toilet voorzien van fraai tegelwerk, wandcloset en fonteintje.
Vanuit de woonkamer de trap naar de eerste etage, overloop met schitterende lichtinval dankzij groot daklicht, apart toilet en toegang tot leuk terras pal zuidwest dat hoogwaardig is afgewerkt. Aan de achterzijde de hoofdslaapkamer over de volle breedte van de woning met goede nokhoogte en twee grote daklichten. Aan de voorzijde nog een goed formaat slaapkamer voorzien van vaste kast en openslaande deuren naar terras. De tussengelegen badkamer beschikt over fraai lichtgrijs tegelwerk, ingebouwd leidingwerk, handdoekradiator, inloopdouche met glazen deur, spiegel met verlichting en walnootlook badkamermeubel.
Aanvullende informatie:
- ’s-Gravenhage sectie AM nummer 1067
- Bouwjaar 1906
- Eigen grond
- Energielabel A++
- Perceelgrootte ca. 50 m²
- Gemeentelijk beschermd stadsgezicht
- Grondgebonden woning dus geen VvE
- Gasloos wonen op een perfecte locatie
- Voorzien van warmtepomp Alpha innotec Jersey 5Kw warmtepomp (lucht/water)
- 1 jaar garantie op de uitgevoerde werkzaamheden
- Algemene verkoopvoorwaarden van toepassing
- Ouderdoms- en niet-bewoningsclausule van toepassing
- Projectnotaris Maaldrink
- Oplevering kan indien gewenst snel
powered by Friva | Lees ons Privacybeleid
































