'S-GRAVENHAGE - Archipel buurt
€ 399.500
Maliestraat 5-A
4 Kamers
1 Badkamers
2 Slaapkamers
76 m²
D
Onbekend
Bezichtiging plannen
Beschrijving
Karakteristiek dubbel bovenhuis gelegen de pittoreske Maliestraat om de hoek van de bruisende Denneweg met totaal ca. 76 m² woonoppervlak verdeeld over sfeervolle living met achterterras pal zuidoost, open keuken in de woonkamer, moderne badkamer en twee goed formaat slaapkamers in de kapetage.
Het prestigieuze Buurtschap 2005 staat bekend om een ruim aanbod aan wijnbars, hooggewaardeerde bistro’s, fashion en beauty. Deze locatie staat daarnaast bekend om haar historische panden, rijksmonumenten en de strategische ligging ten opzichte van het Centrum en de rijksweg A12.
Indeling:
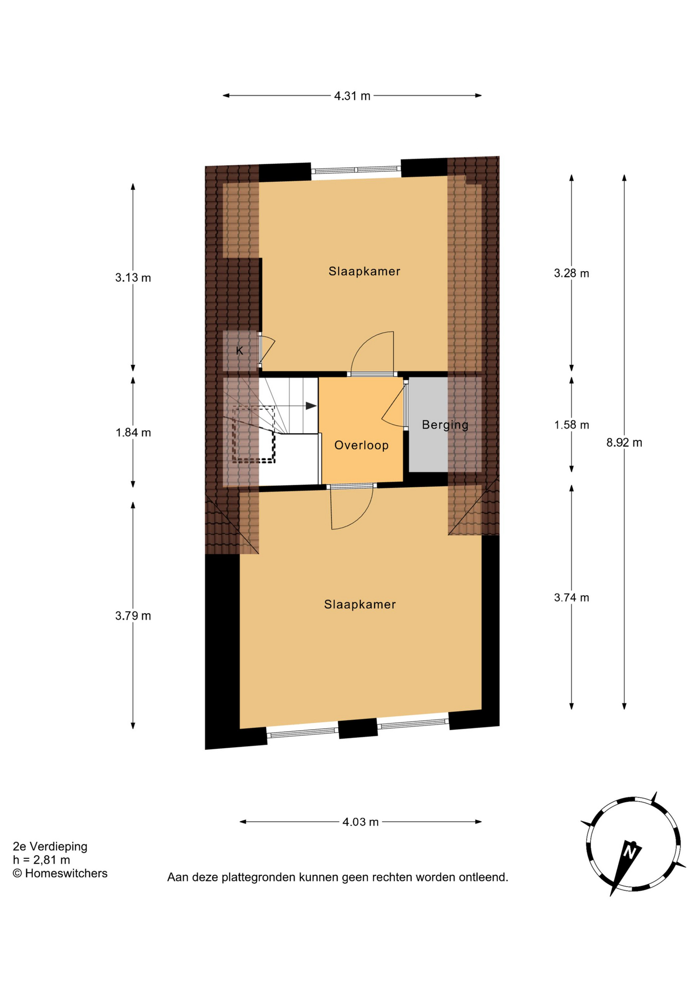
Gemeenschappelijke entree op straatniveau, entree van de woning en de trap naar de eerste etage. Hier bevindt zich de ruime, open woon-/eetkamer met een open keuken, uitgerust met een koelkast, wasbak, 4-pits gasfornuis en afzuigkap. Aan de achterzijde ligt een terras van ruim formaat gunstig gelegen op de ochtend- en middagzon. De badkamer is eveneens aan de achterzijde gelegen en voorzien van douche, wasbak, spiegelkast, toilet en aansluiting voor een wasmachine. Voorts trap naar de tweede etage, overloop met ruime opbergkast en toegang tot de slaapkamers aan zowel de voor- als achterzijde van de woning.
Aanvullende informatie:
- ’s-Gravenhage sectie E nummer 3824 A-2
- Eigen grond
- Bouwjaar 1900
- Rijks beschermd stadsgezicht
- Energielabel D
- 95/184e aandeel in VvE
- Maandelijkse VvE-bijdrage € 271,40
- Collectieve opstalverzekering
- Cv-combiketel Vaillant
- Algemene verkoopvoorwaarde Plink NVM Garantiemakelaars van toepassing
- Ouderdoms-, materialen-, niet-bewoningsclausule
- Projectnotaris Van Buttingha Wichers notarissen
- Oplevering kan indien gewenst snel
Het prestigieuze Buurtschap 2005 staat bekend om een ruim aanbod aan wijnbars, hooggewaardeerde bistro’s, fashion en beauty. Deze locatie staat daarnaast bekend om haar historische panden, rijksmonumenten en de strategische ligging ten opzichte van het Centrum en de rijksweg A12.
Indeling:
Gemeenschappelijke entree op straatniveau, entree van de woning en de trap naar de eerste etage. Hier bevindt zich de ruime, open woon-/eetkamer met een open keuken, uitgerust met een koelkast, wasbak, 4-pits gasfornuis en afzuigkap. Aan de achterzijde ligt een terras van ruim formaat gunstig gelegen op de ochtend- en middagzon. De badkamer is eveneens aan de achterzijde gelegen en voorzien van douche, wasbak, spiegelkast, toilet en aansluiting voor een wasmachine. Voorts trap naar de tweede etage, overloop met ruime opbergkast en toegang tot de slaapkamers aan zowel de voor- als achterzijde van de woning.
Aanvullende informatie:
- ’s-Gravenhage sectie E nummer 3824 A-2
- Eigen grond
- Bouwjaar 1900
- Rijks beschermd stadsgezicht
- Energielabel D
- 95/184e aandeel in VvE
- Maandelijkse VvE-bijdrage € 271,40
- Collectieve opstalverzekering
- Cv-combiketel Vaillant
- Algemene verkoopvoorwaarde Plink NVM Garantiemakelaars van toepassing
- Ouderdoms-, materialen-, niet-bewoningsclausule
- Projectnotaris Van Buttingha Wichers notarissen
- Oplevering kan indien gewenst snel
Beschrijving
Karakteristiek dubbel bovenhuis gelegen de pittoreske Maliestraat om de hoek van de bruisende Denneweg met totaal ca. 76 m² woonoppervlak verdeeld over sfeervolle living met achterterras pal zuidoost, open keuken in de woonkamer, moderne badkamer en twee goed formaat slaapkamers in de kapetage.
Het prestigieuze Buurtschap 2005 staat bekend om een ruim aanbod aan wijnbars, hooggewaardeerde bistro’s, fashion en beauty. Deze locatie staat daarnaast bekend om haar historische panden, rijksmonumenten en de strategische ligging ten opzichte van het Centrum en de rijksweg A12.
Indeling:
Gemeenschappelijke entree op straatniveau, entree van de woning en de trap naar de eerste etage. Hier bevindt zich de ruime, open woon-/eetkamer met een open keuken, uitgerust met een koelkast, wasbak, 4-pits gasfornuis en afzuigkap. Aan de achterzijde ligt een terras van ruim formaat gunstig gelegen op de ochtend- en middagzon. De badkamer is eveneens aan de achterzijde gelegen en voorzien van douche, wasbak, spiegelkast, toilet en aansluiting voor een wasmachine. Voorts trap naar de tweede etage, overloop met ruime opbergkast en toegang tot de slaapkamers aan zowel de voor- als achterzijde van de woning.
Aanvullende informatie:
- ’s-Gravenhage sectie E nummer 3824 A-2
- Eigen grond
- Bouwjaar 1900
- Rijks beschermd stadsgezicht
- Energielabel D
- 95/184e aandeel in VvE
- Maandelijkse VvE-bijdrage € 271,40
- Collectieve opstalverzekering
- Cv-combiketel Vaillant
- Algemene verkoopvoorwaarde Plink NVM Garantiemakelaars van toepassing
- Ouderdoms-, materialen-, niet-bewoningsclausule
- Projectnotaris Van Buttingha Wichers notarissen
- Oplevering kan indien gewenst snel
Het prestigieuze Buurtschap 2005 staat bekend om een ruim aanbod aan wijnbars, hooggewaardeerde bistro’s, fashion en beauty. Deze locatie staat daarnaast bekend om haar historische panden, rijksmonumenten en de strategische ligging ten opzichte van het Centrum en de rijksweg A12.
Indeling:
Gemeenschappelijke entree op straatniveau, entree van de woning en de trap naar de eerste etage. Hier bevindt zich de ruime, open woon-/eetkamer met een open keuken, uitgerust met een koelkast, wasbak, 4-pits gasfornuis en afzuigkap. Aan de achterzijde ligt een terras van ruim formaat gunstig gelegen op de ochtend- en middagzon. De badkamer is eveneens aan de achterzijde gelegen en voorzien van douche, wasbak, spiegelkast, toilet en aansluiting voor een wasmachine. Voorts trap naar de tweede etage, overloop met ruime opbergkast en toegang tot de slaapkamers aan zowel de voor- als achterzijde van de woning.
Aanvullende informatie:
- ’s-Gravenhage sectie E nummer 3824 A-2
- Eigen grond
- Bouwjaar 1900
- Rijks beschermd stadsgezicht
- Energielabel D
- 95/184e aandeel in VvE
- Maandelijkse VvE-bijdrage € 271,40
- Collectieve opstalverzekering
- Cv-combiketel Vaillant
- Algemene verkoopvoorwaarde Plink NVM Garantiemakelaars van toepassing
- Ouderdoms-, materialen-, niet-bewoningsclausule
- Projectnotaris Van Buttingha Wichers notarissen
- Oplevering kan indien gewenst snel
powered by Friva | Lees ons Privacybeleid



















