'S-GRAVENHAGE - Geuzen- en Statenkwartier
€ 745.000
François Maelsonstraat 32
5 Kamers
1 Badkamers
3 Slaapkamers
118 m²
C
Achtertuin
Bezichtiging plannen
Beschrijving
Sfeervolle en goed onderhouden parterrewoning met woonoppervlak van ca. 118 m² en een heerlijke zonnige L-vormige achtertuin van ca. 50 m² gelegen op ZW. De woning is gelegen in het gewilde Statenkwartier in de directe nabijheid van de winkels en restaurants op “de Fred”, de haven, strand en zee. Diverse openbaar vervoermogelijkheden zijn binnen handbereik.
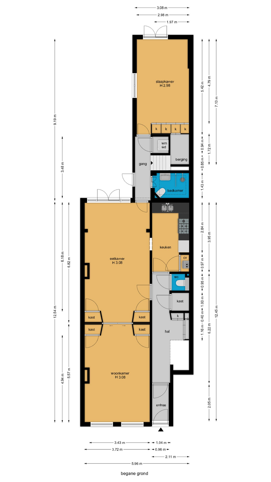
Entree, vestibule met tochtdeur naar de gang met fraaie plavuizen vloer, bergruimte onder de trap voor bijvoorbeeld fietsen, bergkast en een toilet.
De ruime lichte kamer en suite is voorzien van een separatie met schuifdeuren en vaste kasten plafonds met lijstwerk, glas-in-lood bovenlichten, lamelparketvloer en openslaande deuren naar de heerlijk zonnige L-vormige tuin gelegen op ZW. De ruime moderne keuken met inbouwapparatuur is zowel bereikbaar vanuit de gang als vanuit de woonkamer.
Vanuit de woonkamer leidt een gang naar de uitbouw met op de begane grond een badkamer met inloopdouche, wastafel, toilet en lichtkoepel, een ruime slaapkamer met ingebouwde kastenwand en een extra grote bergkast, openslaande deuren naar de achtertuin, in de gang tevens nog een kast met opstelplaats voor wasmachine en wasdroger.
Trap naar 1e etage met overloop en 2 kamers. De uitbouw is voorzien van fraaie visgraat parketvloeren.
Aanvullende informatie:
- ’s-Gravenhage AK 9360 A-1
- 1/2e aandeel
- Eigen grond
- Dak uitbouw in februari 2025 voorzien van nieuwe dakbedekking en isolatie
- Dubbele beglazing
- Vloerisolatie
- Dakisolatie
- CV-ketel ATAG 2018
- Energielabel C
- Beschermd stadsgezicht
- Woonoppervlak conform BBMI 118,2 m²
- Actieve VvE, bijdrage € 150 per maand
- Schilderwerk voor- en achterzijde voor rekening VvE gepland in april 2026
- Algemene verkoopvoorwaarden van toepassing
- Ouderdoms- en materialenclausule van toepassing
Entree, vestibule met tochtdeur naar de gang met fraaie plavuizen vloer, bergruimte onder de trap voor bijvoorbeeld fietsen, bergkast en een toilet.
De ruime lichte kamer en suite is voorzien van een separatie met schuifdeuren en vaste kasten plafonds met lijstwerk, glas-in-lood bovenlichten, lamelparketvloer en openslaande deuren naar de heerlijk zonnige L-vormige tuin gelegen op ZW. De ruime moderne keuken met inbouwapparatuur is zowel bereikbaar vanuit de gang als vanuit de woonkamer.
Vanuit de woonkamer leidt een gang naar de uitbouw met op de begane grond een badkamer met inloopdouche, wastafel, toilet en lichtkoepel, een ruime slaapkamer met ingebouwde kastenwand en een extra grote bergkast, openslaande deuren naar de achtertuin, in de gang tevens nog een kast met opstelplaats voor wasmachine en wasdroger.
Trap naar 1e etage met overloop en 2 kamers. De uitbouw is voorzien van fraaie visgraat parketvloeren.
Aanvullende informatie:
- ’s-Gravenhage AK 9360 A-1
- 1/2e aandeel
- Eigen grond
- Dak uitbouw in februari 2025 voorzien van nieuwe dakbedekking en isolatie
- Dubbele beglazing
- Vloerisolatie
- Dakisolatie
- CV-ketel ATAG 2018
- Energielabel C
- Beschermd stadsgezicht
- Woonoppervlak conform BBMI 118,2 m²
- Actieve VvE, bijdrage € 150 per maand
- Schilderwerk voor- en achterzijde voor rekening VvE gepland in april 2026
- Algemene verkoopvoorwaarden van toepassing
- Ouderdoms- en materialenclausule van toepassing
Beschrijving
Sfeervolle en goed onderhouden parterrewoning met woonoppervlak van ca. 118 m² en een heerlijke zonnige L-vormige achtertuin van ca. 50 m² gelegen op ZW. De woning is gelegen in het gewilde Statenkwartier in de directe nabijheid van de winkels en restaurants op “de Fred”, de haven, strand en zee. Diverse openbaar vervoermogelijkheden zijn binnen handbereik.
Entree, vestibule met tochtdeur naar de gang met fraaie plavuizen vloer, bergruimte onder de trap voor bijvoorbeeld fietsen, bergkast en een toilet.
De ruime lichte kamer en suite is voorzien van een separatie met schuifdeuren en vaste kasten plafonds met lijstwerk, glas-in-lood bovenlichten, lamelparketvloer en openslaande deuren naar de heerlijk zonnige L-vormige tuin gelegen op ZW. De ruime moderne keuken met inbouwapparatuur is zowel bereikbaar vanuit de gang als vanuit de woonkamer.
Vanuit de woonkamer leidt een gang naar de uitbouw met op de begane grond een badkamer met inloopdouche, wastafel, toilet en lichtkoepel, een ruime slaapkamer met ingebouwde kastenwand en een extra grote bergkast, openslaande deuren naar de achtertuin, in de gang tevens nog een kast met opstelplaats voor wasmachine en wasdroger.
Trap naar 1e etage met overloop en 2 kamers. De uitbouw is voorzien van fraaie visgraat parketvloeren.
Aanvullende informatie:
- ’s-Gravenhage AK 9360 A-1
- 1/2e aandeel
- Eigen grond
- Dak uitbouw in februari 2025 voorzien van nieuwe dakbedekking en isolatie
- Dubbele beglazing
- Vloerisolatie
- Dakisolatie
- CV-ketel ATAG 2018
- Energielabel C
- Beschermd stadsgezicht
- Woonoppervlak conform BBMI 118,2 m²
- Actieve VvE, bijdrage € 150 per maand
- Schilderwerk voor- en achterzijde voor rekening VvE gepland in april 2026
- Algemene verkoopvoorwaarden van toepassing
- Ouderdoms- en materialenclausule van toepassing
Entree, vestibule met tochtdeur naar de gang met fraaie plavuizen vloer, bergruimte onder de trap voor bijvoorbeeld fietsen, bergkast en een toilet.
De ruime lichte kamer en suite is voorzien van een separatie met schuifdeuren en vaste kasten plafonds met lijstwerk, glas-in-lood bovenlichten, lamelparketvloer en openslaande deuren naar de heerlijk zonnige L-vormige tuin gelegen op ZW. De ruime moderne keuken met inbouwapparatuur is zowel bereikbaar vanuit de gang als vanuit de woonkamer.
Vanuit de woonkamer leidt een gang naar de uitbouw met op de begane grond een badkamer met inloopdouche, wastafel, toilet en lichtkoepel, een ruime slaapkamer met ingebouwde kastenwand en een extra grote bergkast, openslaande deuren naar de achtertuin, in de gang tevens nog een kast met opstelplaats voor wasmachine en wasdroger.
Trap naar 1e etage met overloop en 2 kamers. De uitbouw is voorzien van fraaie visgraat parketvloeren.
Aanvullende informatie:
- ’s-Gravenhage AK 9360 A-1
- 1/2e aandeel
- Eigen grond
- Dak uitbouw in februari 2025 voorzien van nieuwe dakbedekking en isolatie
- Dubbele beglazing
- Vloerisolatie
- Dakisolatie
- CV-ketel ATAG 2018
- Energielabel C
- Beschermd stadsgezicht
- Woonoppervlak conform BBMI 118,2 m²
- Actieve VvE, bijdrage € 150 per maand
- Schilderwerk voor- en achterzijde voor rekening VvE gepland in april 2026
- Algemene verkoopvoorwaarden van toepassing
- Ouderdoms- en materialenclausule van toepassing
powered by Friva | Lees ons Privacybeleid


















































